!Font Awesome Free 6.5.2 by @fontawesome – https://fontawesome.com License – https://fontawesome.com/license/free Copyright 2024 Fonticons, Inc.
!Font Awesome Pro 6.5.2 by @fontawesome – https://fontawesome.com License – https://fontawesome.com/license (Commercial License) Copyright 2024 Fonticons, Inc.
!Font Awesome Pro 6.5.2 by @fontawesome – https://fontawesome.com License – https://fontawesome.com/license (Commercial License) Copyright 2024 Fonticons, Inc.
Urbanität in historischer Atmosphäre: QNG-zertifizierte Eigentumswohnungen an der Ems!

Urbanität in historischer Atmosphäre: QNG-zertifizierte Eigentumswohnungen an der Ems!

48429 Rheine–rechts der Ems, Westfalen

399.000 €
Kaufpreis
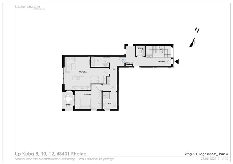
  • ca. 84,7 m²
    Wohnfläche
  • 2
    Zimmer
  • ca. 3.139 m²
    Grundstück
  • 2025
    Baujahr
Objekt-Nr.:

20126_38

Käuferprovision

3,00 % inkl. gesetzl. MwSt. vom Käufer

Erdgeschoss zum Kauf

  • Zum Kauf

  • Abstellraum

Preise

Kaufpreis399.000 €

Flächen

Wohnflächeca. 84,7 m²
Zimmer2
Grundstücksflächeca. 3.139 m²

Zusätzliche Angaben

verfügbar abnach Fertigstellung

Zustand und Bauart

Baujahr2025
KategorieGehoben
Unterkellert

Räume, Flure und Etagen

Schlafzimmer1
Badezimmer1
Wohneinheiten18
Terrassen1

Details

FahrstuhlPersonen
Abstellraum

Stellplätze

Tiefgarage
Anzahl1
Alle Details anzeigen
  • Beschreibung

    Urbanität in historischer Atmosphäre und die Naherholung vor der Haustür. QNG-zertifizierte Eigentumswohnungen an der Ems!

    In bevorzugter innenstadtnaher Lage, wo einst die Textilindustrie beheimatet war, entsteht in Zusammenarbeit mit dem renommierten Bauträger Büscher & Büscher GmbH & Co. KG ein architektonisch anspruchsvolles und QNG-zertifiziertes Neubauvorhaben für Jung und Alt!

    Das Quartier 1, bestehend aus drei Baukörpern im angesagten urbanen Baustil, wird im gefragten „EmsAuenQuartier“ in direkter Nähe zur Ems errichtet und wird wegweisend für das zukünftige Wohnen in Rheine sein. Die moderne Fassadengestaltung mit Wandflächen- und Dachflächenbegrünung verbindet industrielles Flair mit ökologisch bewusster Architektur. Große, bodentiefe Fenster sorgen für viel natürliches Licht und ein helles, modernes Wohngefühl. Als Heizungsanlage wird eine energieeffiziente Luft-Wärmepumpe mit einem Warmwasserspeicher und einer unterstützenden Photovoltaikanlage installiert. Verbunden werden die drei Wohnhäuser, welche selbstverständlich jeweils einen eigenen Aufzug erhalten, über eine gemeinsame Tiefgarage.

    Dreimal 18 Wohneinheiten mit Grundrissflächen von ca. 63 bis ca. 122 m² bieten viel Raum zur individuellen Gestaltung. Über die gesamte Bauphase steht Ihnen das Team von Büscher & Büscher gerne zur Seite. Neben der Vergabe an erfahrene und untereinander eingespielte Gewerke, führt Sie das Team durch die Bauphasen, sodass Sie stets zur rechten Zeit Ihre Individualisierungs-Optionen aussuchen können. Beispielsweise Bodenbeläge, Innentüren, Sanitärbereich oder Elektroplanung in den Wohnungen.

    Zusätzlich bietet dieses QNG-Neubauprojekt attraktive Steuermöglichkeiten für die Abschreibung und die Aufnahme von KfW-Darlehen (KfW 297, 298). Sprechen Sie Ihre Steuerberatung auf die degressive Abschreibung sowie auf die Sonder-Abschreibung an und lassen Sie sich von unseren Kollegen der Volksbank im Münsterland die Vorteile der KfW-Darlehen erläutern.

  • Ausstattung

    – Fassadenbegrünung

    – min. 1 Tiefgaragenstellplatz pro Wohnung

    – alle Wohnungen sind barrierefrei geplant

    – Abstellraum mit Anschlüssen für Waschmaschine und Trockner

    – KFW-40-NH-Standard mit QNG Zertifikat

    – Luft-Wärmepumpe mit einem Warmwasserspeicher und einer unterstützenden Photovoltaikanlage

    – elektrische Kunststoffrollläden

    – Gemeinschaftssatellitenanlage mit jeweils drei Anschlussmöglichkeiten je Wohneinheit

    – Fußbodenheizung mit Einzelraumsteuerung und Raumthermostaten ausgestattet

  • Lage

    Mehr Region zwischen der Ems und dem Walshagenpark – Stadtteil von Rheine, rechts der Ems

    – Ob zu Fuß, per Fahrrad oder mit dem PKW – das Baugebiet bietet den idealen Ausgangspunkt für Ihre Unternehmungen. Wählen Sie zwischen Spaziergang entlang der Emspromenade zum historischen Marktplatz oder der Erledigung von Einkäufen des täglichen Bedarfs unter der Nutzung der neu geschaffenen Geh- und Radwege im nahen Umfeld.

    – Dieser Stadtteil ist nicht nur einer der größten Stadtteile mit beliebten Wohngebieten, sondern verfügt auch über das größte Gewerbe- und Industriegebiet der Stadt. Die dort angesiedelten Unternehmen sind bedeutende Arbeitgeber und Dienstleister wie die Bundeswehr und die Matthias Stiftung

    – Einkaufsmöglichkeiten des täglichen Bedarfs, Ärzte und Apotheken im Stadtteil vorhanden

    – Kindergärten, Grundschulen, Sekundarschule im Stadtteil vorhanden

    – Zudem wird im EmsAuenQuartier eine LWL-Förderschule sowie eine vierzügige Kindertagesstätte entstehen

    – Freizeit: Sportvereine, Walshagenpark nahe der Ems usw.

    – bis zur Innenstadt Rheine oder Bahnhof ca. 2,2 km

    – gute Busverbindung bis zur Innenstadt durch eigene Bushaltestelle nach Fertigstellung

  • Sonstiges

    Die Immobilienangebote verstehen sich freibleibend und unverbindlich. Zwischenverkauf ausdrücklich vorbehalten. Die Objektbeschreibungen wurde aufgrund der Angaben der Verkäufer erstellt. Für die Richtigkeit wird keine Haftung übernommen. Mit dem Eigentümer wurde vereinbart, dass Besichtigungen nur gemeinsam mit uns nach vorheriger Absprache durchgeführt werden.

    WICHTIGER Hinweis!
    Die von Kunden angefragten Exposés werden häufiger mal als SPAM gekennzeichnet. Daher bitten wir Sie auch in Ihrem SPAM-Ordner zu schauen, wenn Sie von uns ein Exposé erwarten.
    Vielen Dank für Ihr Verständnis.

    ** WIR SUCHEN HÄUSER UND WOHNUNGEN FÜR VORGEMERKTE KUNDEN MIT VORHANDENER FINANZIERUNGSBESTÄTIGUNG **

Grundrisse

Energieausweis

Baujahr2025
HeizungsartFußbodenheizung
EnergieausweisEs besteht keine Pflicht!
Objektanfrage

*“ zeigt erforderliche Felder an

Hinweis zur Verarbeitung meiner personenbezogenen Daten
Ich willige in die Verarbeitung meiner personenbezogenen Daten auch über die hier gestellte Anfrage hinaus ein und bin mit einer telefonischen und/oder Kontaktaufnahme per E-Mail genauso einverstanden wie mit der Zusendung weiterer Informationen. Diese Einwilligung kann ich jederzeit widerrufen.
Hannah Südhoff - Immobilienmaklerin in Rheine

Hannah Südhoff

Ansprechpartner

E-Mail schreiben
004925150055903
004925150055919
Weitere Einheiten
Dieses Objekt ist Teil eines laufenden Projekts. Weitere Einheiten finden Sie unter dem folgenden Button.